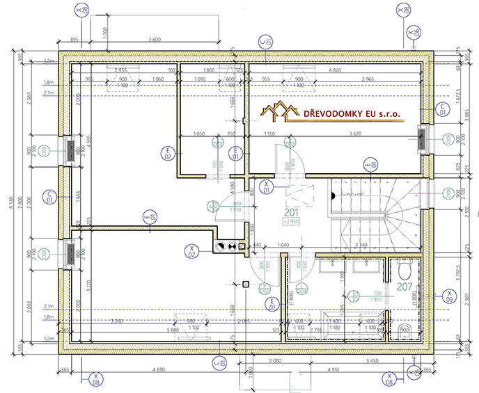
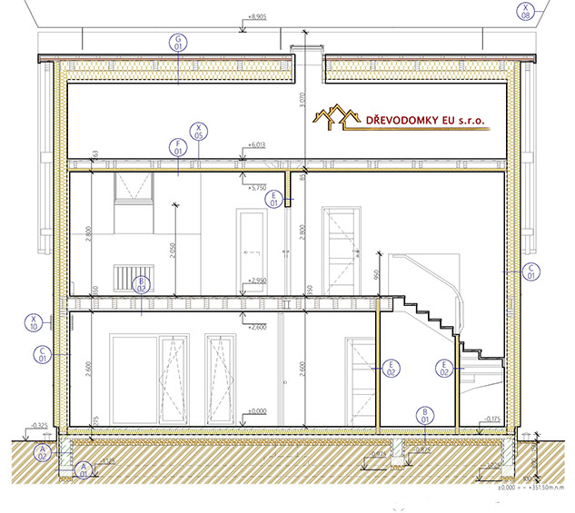
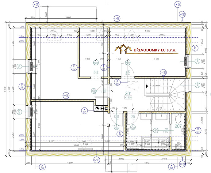
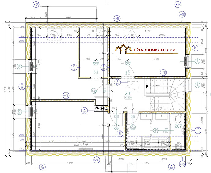
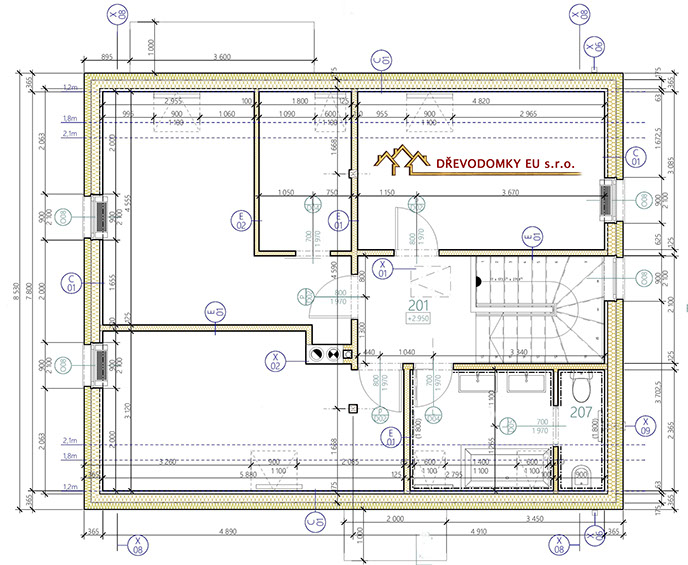
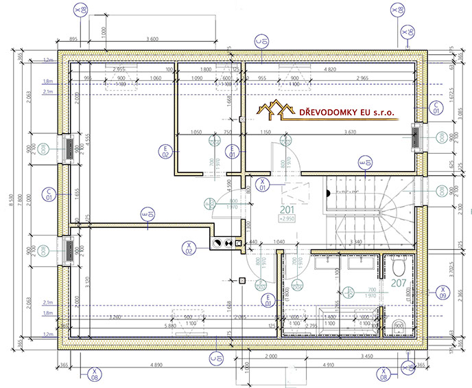
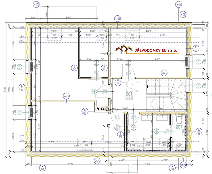
5+KK PATRO 88/176m2
Popis domu
V prezentované ceně je obsaženo:
Základová deska / rovný pozemek
Dřevostavba – obvodový panel,
konstrukce svislé a vodorovné (KVH hranoly)
Dřevěné příhradové vazníky
Zastřešení krytinou
Svody a žlaby, lemování
Vnitřní rozvody vody, kanalizace, elektroinstalace
Revizní zprávy
Vytápění elektrickými přímotopy
Sádrokartony – úprava povrchů
Tepelná izolace stěn a podhledů
Plastová okna s izolačním trojsklem
Vchodové dveře
Vnější zateplovací systém včetně finální fasády a parapetů
Cena včetně základové desky
od 4.000.000,- Kč bez DPH
